Перейти к содержимому

  • Щомыслицкий с/с, АД Р1 "Брест-Минск",
    9-ый км, территория заправки А100
  • Режим работы
График работы

  • Понедельник
    9:00 – 17:30
  • Вторник
    9:00 – 17:30
  • Среда
    9:00 – 17:30
  • Четверг
    9:00 – 17:30
  • Пятница
    9:00 – 17:30
  • Суббота
    10:00 – 16:00
  • Воскресенье
    Выходной
  • Щомыслицкий с/с, АД Р1 "Брест-Минск",
    9-ый км, территория заправки А100

Станция биологической очистки БИОДЕКА-8 С-800

Код товара: 1026-
Краткие характеристики
Объем переработки стоков

1600 л/сут

Залповый сброс

380 литров

Общие характеристики
  • Объем переработки стоков, литров в сутки
    1600
  • Залповый сброс, литров (единовременный прием стоков)
    380
  • Степень очистки, %
    98
  • Способ отведения очищенной воды
    Самотечно
  • Габариты (Длина × Ширина × Высота, мм)
    1350 × 1350 × 2350
О товаре
  • Срок службы, лет
    50
  • Страна производитель
    Россия
  • Гарантия, месяцев
    36

БиоДека 8 – станция биологической очистки с производительностью 1600 л/сутки. При суточном расходе воды 200 на станцией могут пользоваться 8. Залповый сброс БиоДеки 8 – 380, поэтому с этой станцией можно спокойно принимать ванну объемом 200.

Очистка бытовых стоков в септике БиоДека 8 составляет 98,4% по БПК5. Сток из станции не имеет запаха и сразу отводится на рельеф. Можно сэкономить деньги на монтаже и место на участке. Для сравнения, обычный септик очищает сток только до 50-60% и рядом с ним делают дренажный колодец или поле фильтрации. Это хлопотно и требует дополнительных трат.

Корпус септика БиоДека 8

У септика БиоДека 8 цилиндрический корпус. Он рассчитан на сильное давление грунта и имеет один сварной шов на всю толщину листа. Материал корпуса – интегрально вспененный полипропилен с толщиной листа 8 мм. Этот материал не подвержен деформациям и хорошо удерживает тепло. Сварка выполняется на автоматизированных станках на всю толщину полипропиленового листа. Прочность шва и основного материала практически одинаковая. 

Модели BioDeka 8

Септик БиоДека 8 предлагается в разных модификациях, в зависимости от длины корпуса и способа отвода очищенных стоков. Глубина врезки подводящей трубы может быть до 800, до 1300 или до 1800 мм, в зависимости от глубины вывода фановой трубы.

По типу водоотведения септик БиоДека 8 может быть самотечным или принудительным. Септик с самотечным сбросом оптимален для фильтрующих грунтов (известняк, песок, супесь) и при низком уровне грунтовых вод. Принудительные модели предназначены для монтажа при высоких грунтовых водах и в грунте с плохой фильтрацией, в глине или суглинке. В таких моделях есть специальная пластиковая емкость. В ней собирается осветленный сток, и в ней же устанавливают насос с поплавком, который при наполнении емкости откачивает сток в неглубокую канаву над слоем глины и выше уровня грунтовых вод.

Модель

Тип отвода стока

Производительность, л/сутки

Залповый сброс

Глубина врезки подводящей/отводящей труб, мм**

Вес, кг

Габариты (ДхШхВ), мм

Расход энергии, кВт/сутки

Biodeka 8 С-800*

Самотечный

1600

380

До 800/550

310

1350 х 1350 х 2350

1,44

Biodeka 8 П-800

Принудительный

1600

380

До 800/550

315

1350 х 1350 х 2350

1,44

Biodeka 8 С-1300

Самотечный

1600

380

До 1300/1050

330

1350 х 1350 х 2850

1,44

Biodeka 8 П-1300

Принудительный

1600

380

До 1300/1050

335

1350 х 1350 х 2850

1,44

Biodeka 8 С-1800

Самотечный

1600

380

До 1800/1550

350

1350 х 1350 х 3350

1,44

Biodeka 8 П-1800

Принудительный

1600

380

До 1800/1550

355

1350 х 1350 х 3350

1,44

 

*В маркировке септика БиоДека цифра 8 – это количество пользователей, буквы П или С – принудительный или самотечный сброс стока, 800 – максимальная глубина врезки подводящего трубопровода. 

**У септиков BioDeka 8 с самотечным сбросом стока отводящий патрубок врезан на производстве. Подводящий патрубок врезают и герметизируют сварочным прутком в ходе монтажа. У принудительных моделей врезают и герметизируют и входной, и выходной патрубки. Глубина закладки подводящего трубопровода зависит от глубины вывода фановой трубы. В таблице указана максимальная глубина врезки.  

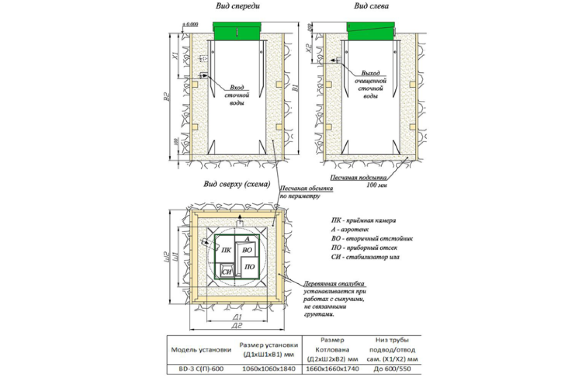
Устройство септика Био Дека 8

Септик БиоДека 8 разделен на 4 камеры. Первая камера – приемная. В ней сток перемешивается и усредняется. Это очень важно для последующей очистки. В станциях с приемной камерой без усреднения создается большая нагрузка на микрофлору и качество очистки хуже.

Из приемной камеры через главный эрлифт сток перекачивается в аэротенк. Здесь происходит мелкопузырчатая аэрация и повышается содержание кислорода в стоке. Это необходимо для размножения аэробных микроорганизмов и протекания процессов нитрификации – окисления аммония до нитратов и нитритов. Окисление происходит в присутствии ферментов, выделяемых аэробными микроорганизмами, образующими колонии (активный ил). Органические вещества в фекальных стоках также перерабатываются аэробной микрофлорой.

Третья камера – вторичный отстойник. Это емкость в виде усеченной пирамиды в аэротенке. В эту камеру не подается воздух и здесь происходит денитрификация. Нитраты восстанавливаются до нитритов и далее до газообразных веществ (оксида азота, закиси азота и свободного азота), которые улетучиваются.

Четвертая камера – стабилизатор ила. Сюда попадает сток из вторичного отстойника. Здесь отработанный ил осаждается, а активный ил самотеком поступает в приемную камеру и продолжает участвовать в очистке. Из этой камеры ил откачивается при обслуживании септика.

Электрооборудование станции очистки Био Дека 8

Для подачи воздуха используется 1 компрессор. Станция БиоДека 8 работает в одном режиме, компрессор непрерывно подает воздух на все эрлифты. Такая система более надежна, чем двухрежимная с одним или с двумя компрессорами. Для нее не требуется стабилизатор напряжения. Например, в однокомпрессорных двухрежимных станциях Юнилос Астра и Волгарь наличие стабилизатора – это условие гарантии на электрику от производителя.

Септик БиоДека 8 оснащается аварийной сигнализацией. К крышке привинчивается лампа, которая получает сигнал от поплавкового датчика в приемной камере и загорается при переполнении станции.

Монтаж БиоДека 8 «под ключ»

Перед монтажом обязательно производятся замеры на участке. Специалист-замерщик приезжает к заказчику. Он определяет, какой грунт на участке и как глубоко залегают грунтовые воды. По результатам осмотра выбирается место для септика и выбирается способ водоотведения – самотеком или с помощью насоса. Инженер составляет схему, по которой будут работать монтажники, а заказчик получает подробнуюету.ета представляет собой перечень необходимых материалов, комплектующих и оборудования с указанием стоимости. Отдельно прописываются дополнительные работы.

В согласованный день на участок приезжает монтажная бригада, которая привозит все, что включено вету. На месте установки септика выкапывают котлован. На дне котлована насыпают слой песка толщиной 10. Септик весит 117 кг и его опускают в котлован вручную, на веревках. Септик обязательно устанавливают ровно. Пазухи между стенками котлована и корпусом засыпают песком. Одновременно с засыпкой котлована наливают воду в септик. Давление изнутри и снаружи должно быть одинаковым, поэтому песок и заливку делают в один уровень.

У самотечных септиков БиоДека 8 при поставке нет подводящего патрубка, его врезают при монтаже. В стенке приемной камеры выпиливают отверстие буровой коронкой 114 мм. Патрубок вставляют в отверстие и приваривают к корпусу полипропиленовым прутком. Для сварки используется термофен с насадкой для сварки полипропилена. У септиков с принудительной откачкой точно так же врезают патрубок отвода. Диаметр коронки для выходного патрубка – 25 или 50 мм.

Компрессор устанавливают в приборный отсек и включают в розетку. Кабели от лампы сигнализации и от поплавкового датчика подключают в распределительной коробке в компрессорном отсеке. Кабель от насоса в принудительных моделях также пропускают через гермоввод и подключают в разветвительной коробке. Кабель от станции подводят к дому и подключают к электрощитку.

Высокие грунтовые воды и глинистый грунт – не помеха для установки септика БиоДека. Эта станция подходит для любых участков. Мы часто устанавливаем БиоДеку вместо выгребных ям, накопителей и бетонных септиков. При этом если заказчик хочет оставить  кольца, то мы просто засыпаем их грунтом и монтируем станцию рядом. Если же септик из бетонных колец решено убрать, то мы аккуратно его демонтируем. 

Обслуживание септика БиоДека 8

Периодичность обслуживания станции – 1 раз в полгода. При обслуживании прежде всего откачивают ил. Для этого используют сервисный эрлифт, установленный в стабилизаторе ила. Его подсоединяют к распределителю воздуха, и после этого сразу начинается откачка. Еще один вариант откачки – с помощью дренажного насоса. Это эффективнее, но нужно предварительно отсоединить емкость-пирамиду, чтобы опустить насос на дно стабилизатора.

Правильное обслуживание также включает промывку эрлифтов и фильтра грубых фракций, мойку всех камер септика изнутри, продувку фильтров компрессора. Для обслуживания надо приобрести мойку высокого давления Керхер или любой другой марки. Если у Вас нет такого оборудования или просто нет времени на уход за септиком, то Вы можете вызвать сервисного инженера компании Загород. Он откачает ил и выполнит все работы по регламенту обслуживания.

Получите бесплатно книгу в Viber

Зполните форму, что бы мы вам прислали книгу

Полезные статьи

Неблагоприятная экологическая ситуация вынуждает жителей мегаполисов покидать городские квартиры и селиться за городом. Поэтому в…
Наша компания была образована в 2015 году. Именно тогда мы начали заниматься продажей и монтажом систем канализации. Мы постоянно…
Наша компания была образована в 2015 году. Именно тогда мы начали заниматься продажей и монтажом систем канализации. Мы постоянно…