Перейти к содержимому

  • Щомыслицкий с/с, АД Р1 "Брест-Минск",
    9-ый км, территория заправки А100
  • Режим работы
График работы

  • Понедельник
    9:00 – 17:30
  • Вторник
    9:00 – 17:30
  • Среда
    9:00 – 17:30
  • Четверг
    9:00 – 17:30
  • Пятница
    9:00 – 17:30
  • Суббота
    10:00 – 16:00
  • Воскресенье
    Выходной
  • Щомыслицкий с/с, АД Р1 "Брест-Минск",
    9-ый км, территория заправки А100

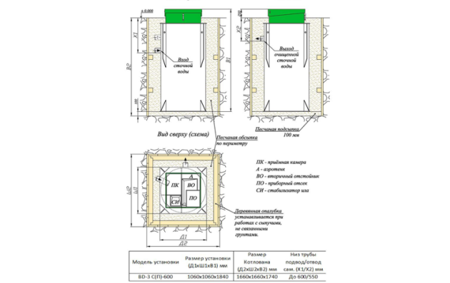
Станция биологической очистки БИОДЕКА-3 П-600

Код товара: 1015-
Краткие характеристики
Объем переработки стоков

500 л/сут

Залповый сброс

140 литров

Общие характеристики
  • Объем переработки стоков, литров в сутки
    500
  • Залповый сброс, литров (единовременный прием стоков)
    140
  • Степень очистки, %
    95
  • Способ отведения очищенной воды
    Принудительно
  • Габариты (Длина × Ширина × Высота, мм)
    1060 × 1060 × 1840
О товаре
  • Срок службы, лет
    50
  • Страна производитель
    Россия
  • Гарантия, месяцев
    36

БиоДека 3 – младшая модель септика БиоДека. Она рассчитана на 1-3. Залповый сброс 140 л достаточен для использования душевой кабины, но для ванной его мало. Унитаз, раковину и стиральную машину можно использовать без опасений. Это хороший вариант для дач с непостоянным проживанием.

Технические характеристики септика БиоДека 3

Модель

Тип отвода стока

Производительность, л/сутки

Залповый сброс

Глубина врезки подводящей трубы, мм**

Вес, кг

Габариты, мм

Расход энергии, кВт/сутки

БиоДека 3 С-600*

Самотечный

500

140

До 600

150

1060 х 1060 х 1840

1,08

БиоДека 3 П-600

Принудительный

500

140

До 600

150

1060 х 1060 х1840

1,08

 

*В маркировке станции цифра 3 – количество условных пользователей, буквы С или П – самотечный или принудительный отвод, 600 – максимальная глубина врезки подводящей трубы.

**Глубина врезки зависит от глубины вывода фановой трубы. Если фановая труба расположена глубоко, то ее можно поднять. Это дополнительная работа, которую монтажники компании Загород могут выполнить по договоренности с заказчиком при установке септика.

Корпус септика БиоДека 3

Корпус септика БиоДека имеет цилиндрическую форму. Давление на цилиндр распределяется равномерно, поэтому корпус не деформируется при сдавливании грунтом. Материал – вспененный полипропилен. Он имеет низкий удельный вес и хорошо удерживает тепло. Толщина стенки – 8 мм. Сварной шов делают на всю толщину листа, прочность шва почти такая же, как прочность материала. К корпусу приварены грунтозацепы, которые фиксируют очистное сооружение в грунте.

Принцип работы септика БиоДека 3

БиоДека 3 – станция с приемной камерой для усреднения стоков. Сточные воды попадают из дома в приемную камеру, перемешиваются и подготавливаются для очистки. Из приемной камеры сток поступает в аэротенк. Здесь происходит обогащение кислородом и идет аэробный процесс нитрификации – окисления аммония до нитритов и нитратов. Органические соединения расщепляются и усваиваются аэробными микроорганизмами. Из аэротенка сточная вода попадает во вторичный отстойник. В нем происходит денитрификация – химические реакции, в ходе которых нитриты и нитраты восстанавливаются до азота. Таким образом, соединения азота почти полностью удаляются из стока.

Степень очистки от органических загрязнений (показатель БПК 5) достигает 98,4%. На выходе –  техническая вода  без запаха. У септиков-отстойников этот показатель всего 50-60% и такой сток отводят для почвенной доочистки на поле фильтрации или в дренажный колодец без дна. Сток из станции БиоДека 3 можно отводить в канаву, не нужно устанавливать фильтрующий колодец или поле рассеивания, как при монтаже септиков. БиоДека 3 подходит для участков с высокими грунтовыми водами и с глинистой почвой.

Электрооборудование септика БиоДека 3

Станция БиоДека 3 однорежимная. В ней установлен 1 компрессор и нет чередования прямой и обратной фаз. Это отличает БиоДеку 3 от других станций биоочистки, у которых в прямой фазе сток отводится из станции, а в обратной, при недостаточном поступлении стоков, вода  циркулирует внутри станции и продолжает очищаться.

Можно сравнить станцию БиоДека 3 с другими известными станциями с приемной камерой-усреднителем.

В септиках Юнилос Астра, Волгарь и Топас-С установлен 1 компрессор, который переключается из одной фазы в другую посредством электромагнитного клапана. Клапан может выйти из строя при скачке напряжения, поэтому рекомендуется устанавливать стабилизатор напряжения. В септиках Юнилос Астра и Волгарь это обязательное условие гарантии на электрооборудование от производителей, компаний СБМ Групп и Волгарь76.

В септиках Топас установлено 2 компрессора, каждый из которых работает в своей фазе. Электромагнитный клапан не нужен, но компрессоры рекомендуется 1 раз в 6 менять местами, чтобы уравнять ресурс. Кроме того, в септиках Топас каждый компрессор нужно подключать в свою розетку. Если перепутать розетки, то станция будет работать неправильно.

 

Станция

Количество компрессоров

Количество фаз

Принцип работы

Преимущества

Недостатки

Топас

2

2

Каждый компрессор работает в своей фазе

Нет электромагнитного клапана, не страшны скачки напряжения. Очистка продолжается при недостаточном поступлении стоков.

Каждый компрессор подключается в свою розетку, есть вероятность ошибиться. Компрессоры рекомендуется 1 раз в 6 менять местами для выравнивания ресурса.

Топас-С

1

2

Фазы компрессоры переключаются с помощью электромагнитного клапана

Очистка продолжается при недостаточном поступлении стоков

Клапан может выйти из строя при скачке напряжения. Для гарантии не нужно устанавливать стабилизатор

Юнилос Астра, Волгарь

1

2

Фазы компрессоры переключаются с помощью электромагнитного клапана

Очистка продолжается при недостаточном поступлении стоков

Клапан может выйти из строя при скачке напряжения. Для гарантии нужно устанавливать стабилизатор

БиоДека 3

1

1

Компрессор подает воздух на все эрлифты

Нет электромагнитного клапана, не страшны скачки напряжения

-

 

Очевидно, что однорежимная схема с одним компрессором в БиоДеке 3 надежнее, чем однорежимная  с 2 компрессорами и 2-режимная с одним компрессором в других станциях. Риск поломки компрессора в БиоДеке минимальный.  

По способу отвода стока септик БиоДека 3 может быть самотечным или принудительным. В принудительной модификации есть дополнительная камера для сбора очищенного стока. В эту камеру устанавливается поплавковый насос, который периодически откачивает воду из станции в канаву. Если на участке фильтрующий грунт и низкие грунтовые воды, то можно установить септик БиоДека 3 с самотечным отводом. Сток можно сбрасывать в глубокую канаву. В тех случаях, когда на участке глина и высокие грунтовые воды, монтируют БиоДека 3 с насосом для принудительной откачки. Глубина канавы – до 70.

Получите бесплатно книгу в Viber

Зполните форму, что бы мы вам прислали книгу

Полезные статьи

Неблагоприятная экологическая ситуация вынуждает жителей мегаполисов покидать городские квартиры и селиться за городом. Поэтому в…
Наша компания была образована в 2015 году. Именно тогда мы начали заниматься продажей и монтажом систем канализации. Мы постоянно…
Наша компания была образована в 2015 году. Именно тогда мы начали заниматься продажей и монтажом систем канализации. Мы постоянно…