Перейти к содержимому

  • Щомыслицкий с/с, АД Р1 "Брест-Минск",
    9-ый км, территория заправки А100
  • Режим работы
График работы

  • Понедельник
    9:00 – 17:30
  • Вторник
    9:00 – 17:30
  • Среда
    9:00 – 17:30
  • Четверг
    9:00 – 17:30
  • Пятница
    9:00 – 17:30
  • Суббота
    10:00 – 16:00
  • Воскресенье
    Выходной
  • Щомыслицкий с/с, АД Р1 "Брест-Минск",
    9-ый км, территория заправки А100

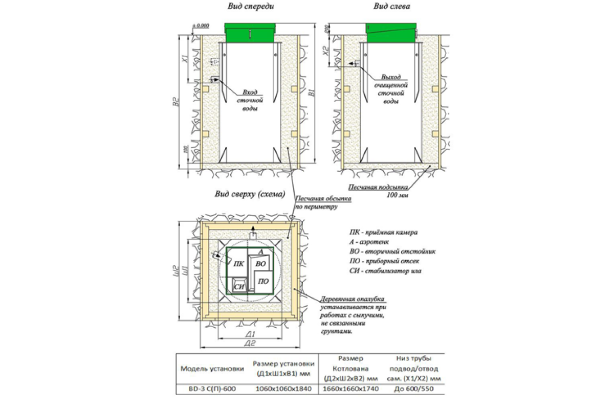
Станция биологической очистки БИОДЕКА-10 P-800

Код товара: 1029-
Краткие характеристики
Объем переработки стоков

2000 л/сут

Залповый сброс

570 литров

Общие характеристики
  • Объем переработки стоков, литров в сутки
    2000
  • Залповый сброс, литров (единовременный прием стоков)
    570
  • Степень очистки, %
    98
  • Способ отведения очищенной воды
    Принудительно
  • Габариты (Длина × Ширина × Высота, мм)
    1740 × 2000 × 2350
О товаре
  • Срок службы, лет
    50
  • Страна производитель
    Россия
  • Гарантия, месяцев
    36

Станции биологической очистки, в принципе работы которых используется взвешенный ил, на сегодняшний день наиболее популярны. Эффективность очистки сточных вод гораздо выше в автономных канализациях с аэробной системой. Инженеры компании «BioDeka» детально изучали существующие принципы очистки сточных вод, и воплотили свои идеи и инновации в станциях биологической очистки BioDeka-10 П-800 .

Широкая линейка автономных канализаций «BioDeka» позволяет справляется с неравномерной подачей бытовых стоков при небольших нагрузках и при объемном залповом сбросе.Как в первом так и во втором случае система позволяет удержать рабочую микрофлору от вымывания, но при этом эффективно очищает и отводит сточные воды.

Обзор характеристик:

Станция очистки сточных вод BioDeka-10 П-800 предназначена для обслуживания объектов, в которых проживают 8 - 10 и может быть установлено:

  • ванн: 2
  • кухонных раковин: 1
  • раковин в сан.узлах: 2
  • унитазов: 2

Могут эксплуатироваться:

  • посудомоечных машин: 1
  • стиральных машин: 1

При этом общий (одномоментный) залповый сброс не превышает 570.

Преимущества станций BioDeka-10 П-800:

  • благодаря однорежимной работе станции, автономная канализация надежная и простая;
  • в установке отсутствуют часто выходящие из строя агрегаты, электромагнитный клапан и поплавковый переключатель;
  • форма станции цилиндрическая имеет только один сварной шов, что повышает прочность и уменьшает вес;
  • станция изготовлена из самых современных материалов, что позволяет использовать её при самых высоких и низких температурных показателях;
  • после очистки, вода не имеет неприятного запаха;
  • аварийная сигнализация в подарок!

Разница аэробных и анаэробных систем заключается проценте очистки сточных вод, очистки воды после станции BioDeka-10 П-800 достигает 98%. В технологической схеме установки заложен принцип глубокой биологической очистки и окисления кислородом, процедура позволяет на столько глубоко очистить бытовые стоки, что их можно отводить без полей фильтрации прямо в ливневую канаву или использовать для полива газона.

Получите бесплатно книгу в Viber

Зполните форму, что бы мы вам прислали книгу

Полезные статьи

Долгое время центральной канализации не могли найти хорошую альтернативу, кроме выгребных ям, доставлявших массу неудобств. Ситуа…
Жизнь за городом – это не только чистый воздух и экологически чистые продукты, но и неудобства, связанные с отсутствием инженерны…
Неблагоприятная экологическая ситуация вынуждает жителей мегаполисов покидать городские квартиры и селиться за городом. Поэтому в…